Dieser Artikel befindet sich im Archiv!
Amtliche Bekanntmachungen | 05.01.2026 – 13.02.2026
hier: Bekanntmachung über die Durchführung der frühzeitigen Bürgerbeteiligung nach § 3 Abs. 1 Baugesetzbuch
Der Gemeinderat der Gemeinde Karlsbad hat am 09.04.2025 in öffentlicher Sitzung beschlossen, gemäß § 2 Abs. 1 Baugesetzbuch (BauGB) den Bebauungsplan und die örtlichen Bauvorschriften „Feuerwehrhaus Langensteinbach“ aufzustellen. Gemäß § 3 Abs. 1 BauGB wird nun die frühzeitige Bürgerbeteiligung und die Beteiligung der Träger öffentliche Belange gemäß § 4 Abs. 1 BauGB durchgeführt.
Das bestehende Feuerwehrgerätehaus von Karlsbad-Langensteinbach entspricht nicht mehr den heutigen Anforderungen und befindet sich in einem baulich schlechten Zustand. In der Feuerwehrkonzeption und per Gemeinderatsbeschluss wurde deshalb entschieden, dass zur Aufgabenerfüllung der Feuerwehr in Langensteinbach ein neues Feuerwehrgerätehaus errichtet werden soll.
Nach der erfolgten Standortauswahl durch den Gemeinderat muss nun das Bebauungsplanverfahren angestoßen werden, um das Planungsrecht für den geplanten Feuerwehrhausneubau zu schaffen.
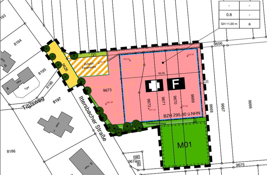
Das Plangebiet umschließt aktuellen Feuerwehrgerätehaus und bietet nach Osten die Möglichkeit zur Errichtung eines neuen Gebäudes. Umfasst werden die Flurstücke 9669, 9670, 9671, 9672 (Teilbereich) und 9673, sowie zur Erschließung Teile des Feldweges Flst.Nr. 9656 und ein Teil der Ittersbacher Straße.

Um die Öffentlichkeit möglichst frühzeitig über die allgemeinen Ziele und Zwecke und die voraussichtlichen Auswirkungen der Planung öffentlich zu unterrichten, wird die frühzeitige Bürgerbeteiligung im Rahmen einer Einsichtnahmemöglichkeit durchgeführt.
Neben, der Planzeichnung, den textlichen Festsetzungen und der Begründung liegen gemäß § 3 Abs. 2 S. 2 BauGB bisher folgende umweltbezogene Informationen vor:
· Voreinschätzung, verarbeitet unter Punkt 8 der Begründung
Der Planentwurf einschließlich der umweltbezogenen Informationen können vom 08.01.2026 bis einschl. 09.02.2026 über die Homepage der Gemeinde unter Karlsbad - Laufende Verfahren > www.karlsbad.de „Bauen und Wirtschaft“ > „Bebauungspläne“ > „Laufende Verfahren“ sowie im zentralen Internetportal des Landes Baden-Württemberg unter https://www.uvp-verbund.de/kartendienste eingesehen werden. Zudem werden die Unterlagen in der Bauverwaltung der Gemeinde Karlsbad, Rathaus Ittersbach, Lange Straße 56, 1. Obergeschoss, Sitzungssaal, während der üblichen Dienstzeiten öffentlich ausgelegt. Zu einer etwaigen Erörterung der Planunterlagen wird um telefonische Terminvereinbarung unter (07202) 9304-523 oder -513 gebeten.
Während dieser Frist können Stellungnahmen gem. § 3 Abs. 2 S. 4 BauGB zur Planung vorgetragen werden. Es wird gebeten die Stellungnahmen elektronisch zu übermitteln. Bei Bedarf können diese aber auch auf anderem Weg abgegeben werden.
Weiter wird darauf hingewiesen, dass nicht fristgerecht abgegebene Stellungnahmen bei der Beschlussfassung über den Bauleitplan unberücksichtigt bleiben können.
Karlsbad, den 05.01.2026
Kornmüller, Bürgermeister