Amtliche Bekanntmachungen | 27.04.2026
hier: Bekanntmachung über die Durchführung der Beteiligung der Öffentlichkeit gem. § 3 Abs. 2 und der Träger öffentlicher Belange gem. § 4 Abs. 2 Baugesetzbuch
Der Gemeinderat der Gemeinde Karlsbad hat in seiner öffentlichen Sitzung am 22.04.2026 den Entwurf des Bebauungsplans „Feuerwehrhaus Langensteinbach“ gebilligt und beschlossen, die Veröffentlichung bzw. öffentliche Auslegung gemäß § 3 Abs. 2 BauGB sowie die Beteiligung der Behörden und sonstiger Träger öffentlicher Belange gemäß § 4 Abs. 2 BauGB durchzuführen.
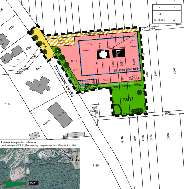
Der räumliche Geltungsbereich umfasst die im folgenden Planausschnitt dargestellten Flächen.

Das Plangebiet umschließt das Grundstück des aktuellen Feuerwehrgerätehauses und bietet nach Osten die Möglichkeit zur Errichtung eines neuen Gebäudes. Umfasst werden die Flurstücke 9669, 9670, 9671, 9672 (Teilbereich) und 9673, sowie zur Erschließung Teile des Feldweges Flst.Nr. 9656 und ein Teil der Ittersbacher Straße.
Zum Bebauungsplangebiet gehört die externe Fläche WR 6 als Ausgleichsmaßnahme.
Das bestehende Feuerwehrgerätehaus von Karlsbad-Langensteinbach entspricht nicht mehr den heutigen Anforderungen und befindet sich in einem baulich schlechten Zustand.
In der Feuerwehrkonzeption und per Gemeinderatsbeschluss wurde deshalb entschieden, dass zur Aufgabenerfüllung der Feuerwehr in Langensteinbach ein neues Feuerwehrgerätehaus errichtet werden soll.
Neben dem zeichnerischen Teil, den planungsrechtlichen Festsetzungen und der Begründung liegen gemäß § 3 Abs. 2 S. 1 BauGB folgende umweltbezogene Informationen vor:
· Fachbeitrag Artenschutz (Februar 2026)
· Umweltbericht (März 2026)
· Informationen im Rahmen der frühzeitigen Beteiligung, dargestellt in der Synopse vom 15.04.2026
Der Planentwurf einschließlich der umweltbezogenen Informationen sowie Anlagen und der Synopse zur frühzeitigen Beteiligung können vom 30.04.2026 bis einschl. 31.05.2026 über die Homepage der Gemeinde unter Karlsbad - Laufende Verfahren > www.karlsbad.de „Bauen und Wirtschaft“ > „Bebauungspläne“ > „Laufende Verfahren“ sowie im zentralen Internetportal des Landes Baden-Württemberg unter https://www.uvp-verbund.de/ eingesehen werden. Zudem werden die Unterlagen in der Bauverwaltung der Gemeinde Karlsbad, Rathaus Ittersbach, Lange Straße 56, 1. Obergeschoss, Sitzungssaal, während der üblichen Dienstzeiten öffentlich ausgelegt. Zu einer etwaigen Erörterung der Planunterlagen wird um telefonische Terminvereinbarung unter (07202) 9304-513 oder -523 gebeten.
Während dieser Frist können Stellungnahmen gem. § 3 Abs. 2 S. 4 BauGB zur Planung vorgetragen werden. Es wird gebeten die Stellungnahmen elektronisch zu übermitteln. Bei Bedarf können diese aber auch auf anderem Weg abgegeben werden.
Weiter wird darauf hingewiesen, dass nicht fristgerecht abgegebene Stellungnahmen bei der Beschlussfassung über den Bauleitplan unberücksichtigt bleiben können.
Karlsbad, den 27.04.2026
Kornmüller, Bürgermeister